ステッチコラム
公開日: 更新日:
空き家再生の舞台裏
不動産の売却 不動産査定 空き家
株式会社ステッチでは、使われなくなった空家をリフォームして再利用する
「空き家再生事業」も行っております。
ここでは実際にリフォームを行い、再生した物件をご紹介いたします。

リフォーム前の物件は、お庭は草木が伸び、建物は築年数相当の劣化がある状態でした。

昭和61年に建築された建物のため、室内は時代を感じる造りになっております。
壁紙や床に残った傷や汚れから、そこで暮らしていた人々の生活の跡を感じることができました。
ここからリフォームを行い、再生した物件がこちらです。


経年劣化で汚れた外壁を、クリーム系の色に塗装いたしました。
破損していた雨どいの交換を行い、屋根はミルクチョコレートのような色に塗装いたしました。
シャッターの洗浄も行っております。


リビングは、アコーディオンカーテンで仕切られていた空間を繋げて一部屋にいたしました。
ゆったりとした空間に変わり、ダイニングセットやソファが楽々置けるようになりました。
壁紙と床の張替えを行い、シンプルな雰囲気に。大きめの掃き出し窓からは柔らかな日差しが差し込みます。


古いキッチンは取り外し、新品へ交換いたしました。
色はグレー系で統一し、モダンな雰囲気へ。
独立型キッチンのため、お料理のニオイがリビングへ広がりづらいです。


傷んでしまった洗面台を取り外し、三面鏡付き洗面化粧台へ交換いたしました。
鏡の裏は収納になっているので、整髪料や化粧水などの生活用品をしまうことができます。
洗濯機置き場の横にあった壁は取り外し、圧迫感の無いように変更。
アクセントクロスにストーン調のものを取り入れ、スッキリとした雰囲気へ生まれ変わりました。
洗面台の横には、棚などを取り付けることのできるスペースをご用意いたしました。


タイル張りの古い浴槽を取り外し、システムバスへ変更いたしました。
カウンターは取り外して丸洗いすることが可能なので、お掃除もしやすくなりました。
ディープグレーの床は、すべりにくい構造になっています。


トイレは1階、2階ともに新品へ交換いたしました。
壁紙と床の張替えを行い、清潔感のある明るい空間に変化いたしました。
ウォシュレット機能付きです。


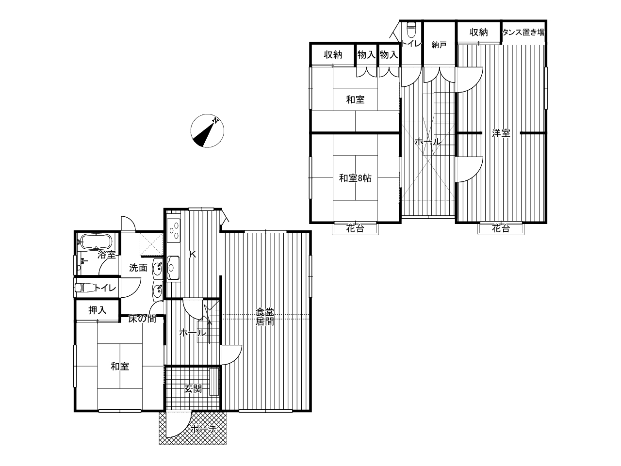
2階の和室は洋室へと変更いたしました。
隣の和室とつながった構造になっていたのを、壁を造作し2部屋に仕切りました。
北側には収納を設置。扉は自由に動かせる仕様になっているので、大きめの荷物も楽々収納できます。


一部間取り変更を行いました。リビングや寝室は仕切りを外し、一つの広い空間へ。2階の和室は洋室へ変更いたしました。




劣化した部分を直し、元の風合いも活かしつつ、新しい姿へと生まれ変わりました。
このように、株式会社ステッチでは古くなった建物を再生し、新たに住む人へと繋ぐ「空き家再生事業」を行っております。
リフォームも承っておりますので、お悩み事があれば一度ご相談いただけますと幸いです。
不動産の買取に関して、弊社はかつ迅速なプロセスを無料で提供しています。査定から始まり、お客様のご要望に基づいた適切な価格での買取を実現します。専門の査定士が物件を詳細に調査、市場動向や土地の特性を考慮した上で最適な価格を提案いたします。
また、手続き全般においてスムーズかつ透明性のある対応を心がけており、信頼性の高いサービスを提供しています。
不動産の売却に関するご質問やご質問がございましたら、いつでもお気軽にご相談ください。