新築戸建
一般公開物件
66件
会員公開物件
8件
前橋市六供町一丁目 25-1期 全1棟
2,699万円
| 物件名 | 前橋市六供町一丁目 25-1期 全1棟 |
|---|---|
| 交通 | JR両毛線 前橋駅/バス停 バス時間 /徒歩距離 1040m/上毛電気鉄道 中央前橋駅/バス停 バス時間 徒歩距離 2000m/その他 |
| 構造 | 木造 2階建て |
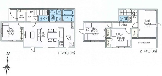
| 土地面積 | 111.25㎡ |
| 都市計画 | 市街化区域 |
| 建ぺい率 | 80% |
| 向き | 南 |
| 私道負担 | なし |
| 建築番号 | 第25UDI1W建07617号 |
| 引渡時期 | 即時 |
| 取引態様 | 仲介 |
| 接道状況 |
角地
方向 南 間口 - 種別 公道 幅員 6.0m 方向 西 間口 - 種別 公道 幅員 6.0m |
| 設備 | 水道 公営 / ガス 都市 / 排水 下水 / バス専用 / トイレ専用 / バス・トイレ別 / シャワー / コンロ種別 ガス / コンロ口数 三口 / システムキッチン / 追焚機能 / シャワー付洗面化粧台 / 床下収納 / 洗濯機置き場 室内 / TVドアホン / 温水洗浄便座 / カウンターキッチン / 浴室乾燥機 / 全居室収納 / クローゼット / シューズボックス / 設計住宅性能評価書 / 長期優良住宅認定通知書 / 建設住宅性能評価書(新築時) |
| 情報公開日 | 2026/05/09 17:01:03 |
| 所在地 | 群馬県前橋市六供町 |
|---|---|
| 地目 | 宅地 |
| 販売戸数 | 1戸 |
| 建物面積 | 95.23㎡ |
| 用途地域 | 近隣商業 |
| 容積率 | 200% |
| 間取り | 4LDK |
| 駐車場 | 空有 |
| 築年月 | 2026/02 |
| 現況 | 空家 |
| 法令上の制限 | |
| 備考 | 〇リビング約16帖!キッチン横には可動棚収納があるので、日用品や食料品をスッキリ収納できます♪ 〇リビング横の洋室は居室としての使用はもちろん、室内干し用のお部屋としても活用できます! 〇けやきウォーク前橋まで徒歩約15分!お買い物に行きやすいです♪ ◇◆◇お問い合わせは【027-225-5100】株式会社ステッチまで◇◆◇ |
| 次回更新予定日 | 2026/05/23 |





















































































































